Immobilien
Finde dein perfektes zuhause
Wohnimmobilien
VERMIETET
- Wohnung
Preis auf Anfrage
Amberggasse 15, 6020 Innsbruck
3 Zimmer / 1 Bad / 1 WC / 1 Küche
59 m2

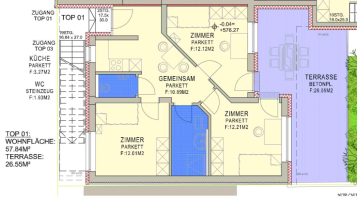
VERMIETET
- Wohnung
Preis auf Anfrage
Amberggasse 15, 6020 Innsbruck
3 Zimmer / 1 Bad / 1 WC / 1 Küche
58 m2

Vermietet
- Wohnung
derzeit vermietet
Ampfererstraße 8, 6020 Innsbruck
4 Zimmer / 1 Bad / 1 Küche
77 m2








